Description
Kamniški Biser – Modern Living in the Heart of Kamnik
In the center of Kamnik, between Knafličev prehod, Usnjarska Street, and Parmova Street, a new residential and commercial complex called Kamniški Biser is taking shape. With its contemporary architecture, green areas, and high-quality construction, it will offer comfortable and safe living for all generations.
The complex will include a total of 58 modernly designed apartments of various sizes – from studios to five-room units. Buildings C1 and C2 will house 53 apartments, while Villa E will contain 5 larger, high-end three- and four-room apartments. All apartments are designed to be bright, functional, and focused on comfort.
Advantages of living in Kamniški Biser:
* Spacious loggias, balconies, and terraces with private atriums
* Shared courtyard, green park, and children’s playground in the central part of the complex
* Underground garage with 158 parking spaces for cars and 34 for motorcycles
* Bicycle storage on the ground floor and in the basement
* Seven commercial units (41–152 m²) on the ground floor of the building
* Energy class B1–A2
* Underfloor heating, local ventilation with heat recovery, automatic blinds, and video intercom
* High-quality materials: triple-layer parquet, premium ceramics, solid interior doors with concealed hinges, anti-burglary and soundproof entrance doors
* Pre-installation for air conditioning
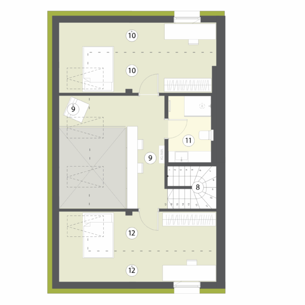
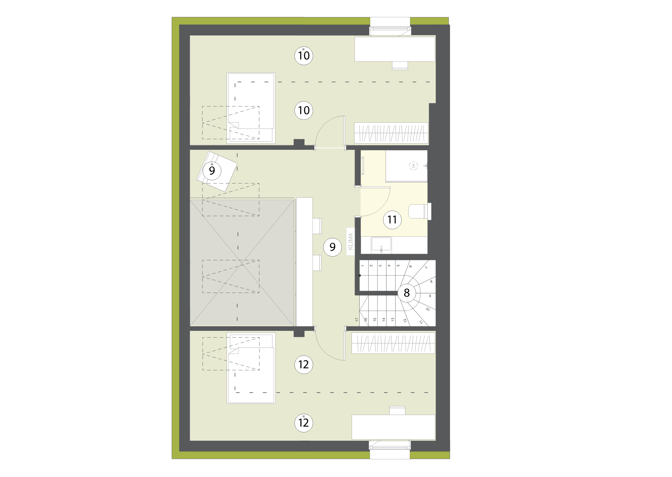
The luxurious four-room apartment S 203, with an area of 138.7 m², extends over two floors. Near the entrance hallway, there is a guest bathroom. The comfortable living area includes a kitchen, dining area, and living room, from which access to the balcony is provided through multiple glass surfaces. The covered balcony, measuring 12.5 m², serves as a pleasant outdoor extension of the living space. The kitchen is equipped with all necessary connections and has space for an island. Above the living room, there is a double-height space that connects to the upper floor via a gallery. The corner bedrooms each have their own bathroom with a shower. Interior stairs lead to the upper floor. From the central gallery, there is access to two large attic children’s rooms, each with its own bathroom with a shower. The apartment has a triple orientation. Through traditional windows on the lower floor and high-quality roof windows on the upper floor, it faces southeast, southwest, and northwest.
Each apartment comes with a storage unit, and a parking space in the garage is available for an additional €21,000 (including VAT).
Expected completion of construction: Autumn 2027
On the official website www.kamniski-biser.si, you can view floor plans, availability, sizes, and apartment prices. An interactive 3D model of the complex is available at https://kamniski-biser.si/3d-model/.
The price includes 9.5% VAT. The buyer does not pay commission.
For more information, please contact: Sales: +386 51 649 475 – Aleš Email: info@brn.si
Investor: Brilosa Topniška d.o.o., Ljubljana +386 40 66 22 55 – Romana
Properties
Heating/Cooling
- Gas
- Heat pump
- Air conditioning
- Recuperator
- Underfloor heating
Exterior
- Balcony
- parking
Installations
- Electricity
- Water
- Sewer
- Optics (fiber optic connection)
- Gas pipeline
Comfort
- N/A


