Opis nepremičnine
Sodna vas – sodobno bivanje v objemu narave Kozjanskega
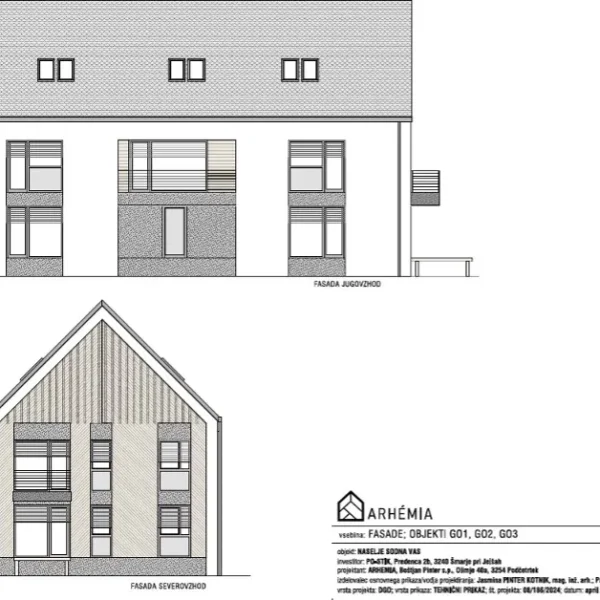
V mirnem in zelenem okolju v naselju Sodna vas pri Podčetrtku nastaja manjše, butično stanovanjsko naselje treh večstanovanjskih objektov, ki združuje sodobno arhitekturo, funkcionalno zasnovo in občutek domačnosti. Vsak objekt obsega pet stanovanjskih enot, zasnovanih za udobno bivanje vseh generacij.
Lokacija ponuja odlično dostopnost in bližino vse potrebne infrastrukture – avtobusna in železniška postaja sta v neposredni bližini, prav tako šola, vrtec, rekreacijske površine ter priljubljene turistične točke.
Prednosti bivanja v Sodna vas:
Butično naselje treh objektov z le petimi stanovanji v vsakem
Mirna lokacija v naravi z dobro prometno povezavo
Funkcionalno zasnovana stanovanja z optimalnim izkoristkom prostora
Vsakemu stanovanju pripadata parkirno mesto in shramba
Pritlična stanovanja z lastno teraso in zemljiščem
Kakovostna gradnja z uporabo sodobnih materialov
Stanovanje S1 – funkcionalno trisobno stanovanje s teraso
Stanovanje S1 se nahaja v pritličju in meri 59,0 m² bivalne površine ter dodatnih 12,0 m² zunanje terase, skupaj s shrambo 75,4 m².
Obsega vhodno predsobo, hodnik, spalnico, dodatno sobo, kopalnico ter svetel in prostoren bivalni del, ki združuje kuhinjo, jedilnico in dnevno sobo. Bivalni prostor omogoča neposreden izhod na teraso, ki ponuja prijeten zunanji kotiček za sprostitev.
Razporeditev prostorov je premišljena in omogoča optimalno izrabo vsakega kvadratnega metra, kar zagotavlja udobno bivanje tako posameznikom kot družinam.
Stanovanju pripadata tudi lastno zemljišče ter parkirno mesto.
Cena: 265.000 EUR z vključenim DDVjem.
Predviden zaključek gradnje: konec leta 2026 (objekt G03), celoten projekt v letu 2027.
Kupec ne plača provizije.
Za več informacij in ogled:
Aleš: 051 649 475
Nuša: 040 381 288
E-pošta: info@brn.si
Investitor: PO-STIK d.o.o.
Lastnosti nepremičnine
Ogrevanje/hlajenje
- /
Zunanjost
- /
Priključki
- /
Udobje
- /


