Opis nepremičnine
Kamniški Biser – sodobno bivanje v središču Kamnika
V središču Kamnika, med Knafličevim prehodom, Usnjarsko in Parmovo ulico, nastaja nov stanovanjsko-poslovni kompleks Kamniški Biser, ki bo s svojo sodobno arhitekturo, zelenimi površinami in kakovostno izvedbo ponujal prijetno in varno bivanje za vse generacije.
V kompleksu bo skupno 58 sodobno zasnovanih stanovanj različnih velikosti – od garsonjer do pet-sobnih. V objektih C1 in C2 bo 53 stanovanj, v vili E pa 5 večjih, tri- in štiri-sobnih stanovanj višjega razreda. Vsa stanovanja so zasnovana svetlo, funkcionalno in z mislijo na udobje.
Prednosti bivanja v Kamniškem Biseru:
– Prostorne lože, balkoni in terase z zasebnimi atriji
– Skupen atrij, zeleni park in otroško igrišče v osrednjem delu kompleksa
– Podzemna garaža s 158 parkirnimi mesti za osebna vozila in 34 mesti za motorna vozila
– Kolesarnice v pritličju in kleti – Sedem poslovnih prostorov (41–152 m²) v pritličju objekta
– Energetski razred B1–A2
– Talno gretje, lokalna rekuperacija, avtomatske žaluzije in videodomofon
– Visoka kakovost materialov: troslojni parket, kakovostna keramika, polna notranja vrata s skritimi nasadili, protivlomna in protihrupna vhodna vrata
– Predpriprava za klimatsko napravo
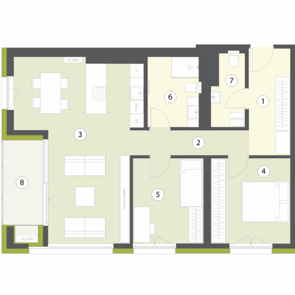
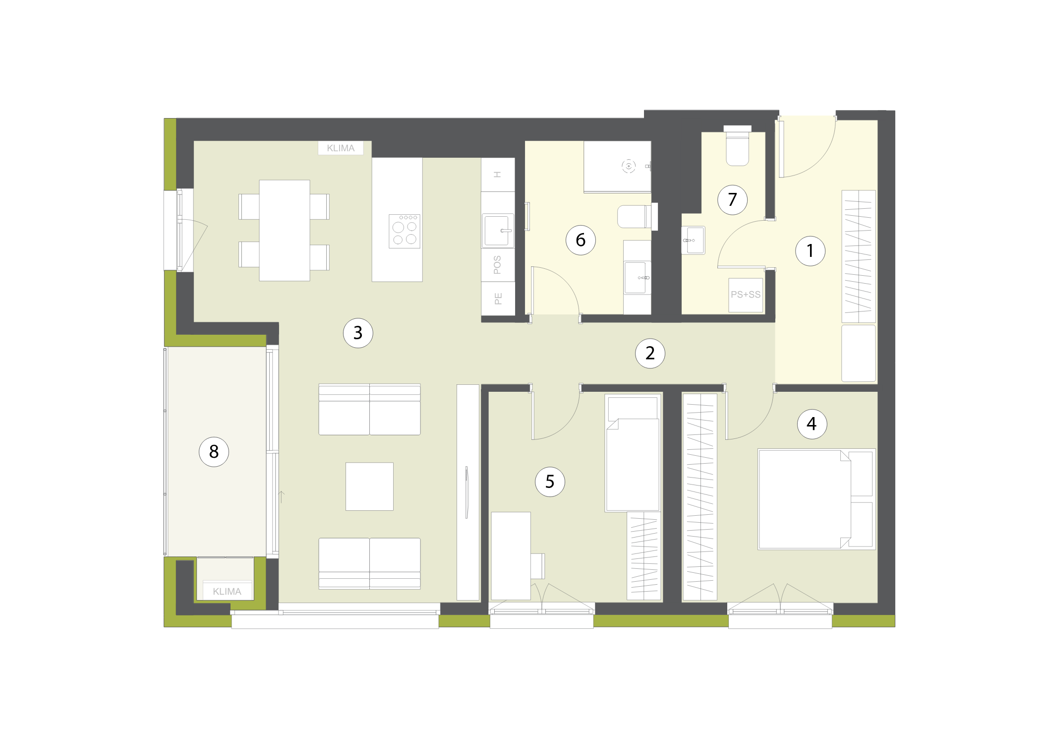
Udobno trisobno stanovanje S 121 meri 72,0 m2. Stanovanje obsega vhodni predprostor, kopalnico s tušem, utility, spalnico, udobno otroško sobo in svetel dnevno-bivalni prostor, ki ga sestavljajo kuhinja, jedilnica in dnevna soba. Iz dnevno-bivalnega prostora je preko velikih steklenih površin z nagibno drsnimi vrati omogočen dostop na ložo. Pokrita loža velikosti 6,0 m2 predstavlja prijeten zunanji podaljšek dnevno-bivalnega prostora. Kuhinja ima urejene vse potrebne priključke in prostor za otok. Stanovanje je orientirano proti jugo-vzhodu.
Vsakemu stanovanju pripada shramba, parkirno mesto v garaži pa je na voljo za doplačilo 21.000 € z DDV.
Predviden zaključek gradnje: jesen 2027.
Na uradni spletni strani www.kamniski-biser.si si lahko ogledate tlorise, razpoložljivost, kvadrature in cene stanovanj. Interaktivni 3D model kompleksa je dostopen na https://kamniski-biser.si/3d-model/.
Cena vključuje 9,5 % DDV. Kupec ne plača provizije.
Za več informacij nas kontaktirajte:
Prodaja: 051 649 475 – Aleš
Elektronski naslov: info@brn.si
Investitor:
Brilosa Topniška d.o.o., Ljubljana
040 66 22 55 – Romana
Lastnosti nepremičnine
Ogrevanje/hlajenje
- Plin
- Toplotna črpalka
- Klima
- Rekuperator
- Talno gretje
Zunanjost
- balkon
- Parkirišče
Priključki
- voda
- Elektrika
- Kanalizacija
- plinovod
- Optika
Udobje
- /


