Opis nepremičnine
Kamniški Biser – sodobno bivanje v središču Kamnika
V središču Kamnika, med Knafličevim prehodom, Usnjarsko in Parmovo ulico, nastaja nov stanovanjsko-poslovni kompleks Kamniški Biser, ki bo s svojo sodobno arhitekturo, zelenimi površinami in kakovostno izvedbo ponujal prijetno in varno bivanje za vse generacije.
V kompleksu bo skupno 58 sodobno zasnovanih stanovanj različnih velikosti – od garsonjer do pet-sobnih. V objektih C1 in C2 bo 53 stanovanj, v vili E pa 5 večjih, tri- in štiri-sobnih stanovanj višjega razreda. Vsa stanovanja so zasnovana svetlo, funkcionalno in z mislijo na udobje.
Prednosti bivanja v Kamniškem Biseru:
– Prostorne lože, balkoni in terase z zasebnimi atriji
– Skupen atrij, zeleni park in otroško igrišče v osrednjem delu kompleksa
– Podzemna garaža s 158 parkirnimi mesti za osebna vozila in 34 mesti za motorna vozila
– Kolesarnice v pritličju in kleti – Sedem poslovnih prostorov (41–152 m²) v pritličju objekta
– Energetski razred B1–A2
– Talno gretje, lokalna rekuperacija, avtomatske žaluzije in videodomofon
– Visoka kakovost materialov: troslojni parket, kakovostna keramika, polna notranja vrata s skritimi nasadili, protivlomna in protihrupna vhodna vrata
– Predpriprava za klimatsko napravo
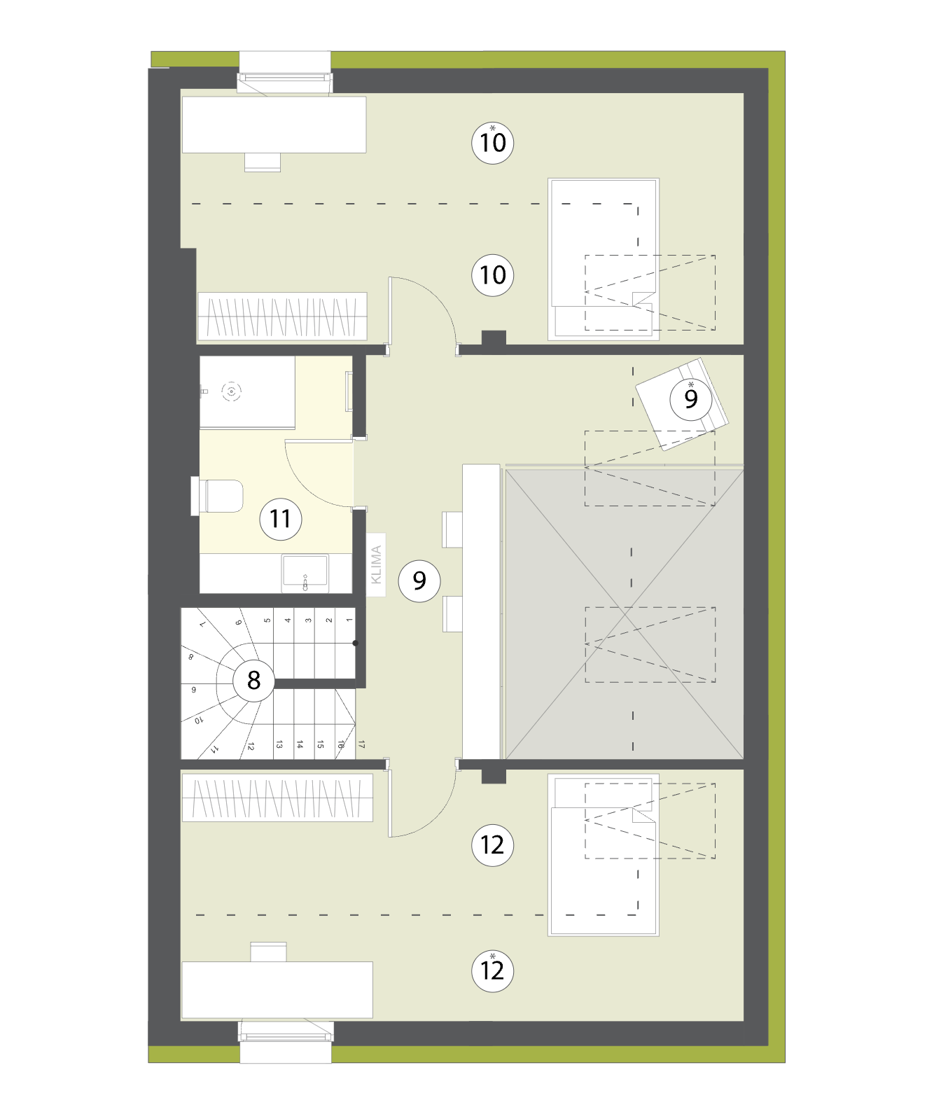
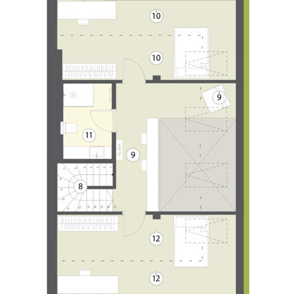
Razkošno štirisobno stanovanje S 205 površine 139,6 m2 se razprostira preko dveh etaž. Ob vhodnem predprostoru se nahaja sanitarni prostor za goste. V udoben dnevno bivalni prostor so umeščene kuhinja, jedilnica in dnevna soba, od koder je preko več steklenih površin omogočen dostop na balkon. Pokrit balkon velikosti 12,5 m2 predstavlja prijeten zunanji podaljšek dnevno-bivalnega prostora. Kuhinja ima urejene vse potrebne priključke in prostor za otok. Nad dnevno sobo se dviga dvovišinski prostor, ki komunicira z zgornjo etažo preko galerije. Vogalni spalnici pripada lastna kopalnica s tušem. Notranje stopnice vodijo v zgornjo etažo. Z osrednje galerije se vstopa v dve veliki mansardni otroški sobi, ki imata svojo kopalnico s tušem. Stanovanje ima tristransko orientacijo. Preko klasičnih oken v spodnji etaži in kvalitetnih strešnih oken v zgornji etaži se odpira proti jugo-vzhodu, severo-vzhodu in severo-zahodu.
Vsakemu stanovanju pripada shramba, parkirno mesto v garaži pa je na voljo za doplačilo 21.000 € z DDV.
Predviden zaključek gradnje: jesen 2027.
Na uradni spletni strani www.kamniski-biser.si si lahko ogledate tlorise, razpoložljivost, kvadrature in cene stanovanj. Interaktivni 3D model kompleksa je dostopen na https://kamniski-biser.si/3d-model/.
Cena vključuje 9,5 % DDV. Kupec ne plača provizije.
Za več informacij nas kontaktirajte:
Prodaja: 051 649 475 – Aleš
Elektronski naslov: info@brn.si
Investitor:
Brilosa Topniška d.o.o., Ljubljana
040 66 22 55 – Romana
Lastnosti nepremičnine
Ogrevanje/hlajenje
- Plin
- Toplotna črpalka
- Rekuperator
- Talno gretje
Zunanjost
- balkon
Priključki
- Elektrika
- voda
- Kanalizacija
- Optika
Udobje
- /


