Opis nepremičnine
EDINSTVENA PRILOŽNOST: SODOBEN DVOJČEK V ZELENEM OKOLJU MEDVOD (SVETJE)
Vaš nov dom v mirnem naselju, v stiku z naravo in z odlično dostopnostjo do infrastructure.
Na odlični lokaciji v naselju Svetje pri Medvodah, v urejenem in mirnem okolju pretežno eno- in dvostanovanjskih hiš, bo zgrajena sodobna novogradnja dvojčka. Projekt predstavlja idealno izbiro za družine in posameznike, ki si želijo kakovostnega bivanja v naravnem okolju, hkrati pa bližine Medvod in Ljubljane.
MODERNA ARHITEKTURA IN FUNKCIONALNA RAZPOREDITEV
Dvojček sestavljata dve enakovredni zrcalno zasnovani stanovanjski enoti, vsaka z lastnim vhodom in zasebnim vrtom. Objekt je zasnovan v dveh etažah (pritličje + mansarda) z dodatno izkoriščenim podstrešjem nad otroškimi sobami.
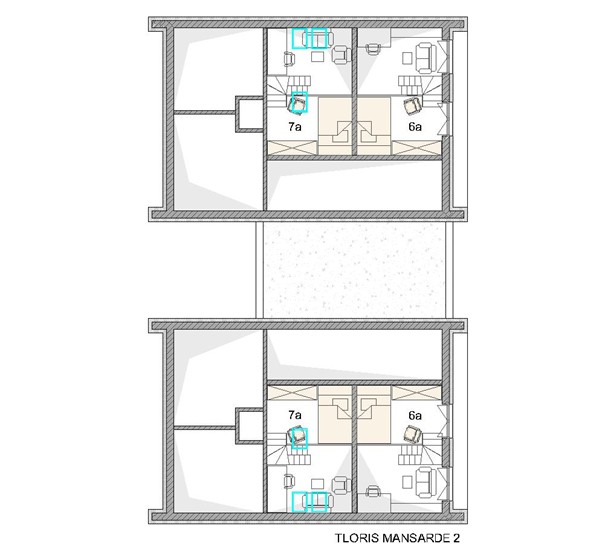
Razporeditev prostorov:
Pritličje (89,72 m² neto):
– prostoren odprt bivalni prostor s kuhinjo, jedilnico in dnevno sobo
– izhod na teraso in vrt
– hodnik s stopniščem
– kopalnica
– garderoba
– pralnica z utilitijem
– shramba
– kolesarnica
– nadkrit vhod
Mansarda (73,90 m² neto):
– glavna spalnica
– garderoba
– kabinet
– dve otroški sobi, zasnovani v dveh nivojih
– kopalnica
– dodatna kopalnica
– povezovalni hodnik
Izkoriščeno podstrešje:
– dodatni prostor nad otroškimi sobami (skupaj 17,20 m²), odprt do strešne konstrukcije, z internim dostopom po stopnicah – idealno za igro, bralne kotičke ali shranjevanje.
Skupaj neto uporabna površina: cca 180,8 m²
Skupaj bruto tlorisna površina enote: cca 263,0 m²
KVALITETA BREZ KOMPROMISOV
Hiša bo zgrajena na ključ, z uporabo kakovostnih materialov in sodobnih tehničnih rešitev.
Gradnja in materiali
klasična masivna gradnja (armirani beton + opečni votlak)
temeljna armiranobetonska plošča in AB medetažna plošča
fasada z 20 cm toplotne izolacije (mineralna volna / XPS), svetli/pastelni toni
dvokapna streha brez napuščev, naklon 45°
strešna kritina: opečni ali betonski zareznik
troslojna PVC okna
protivlomna, protipožarna in protihrupna vhodna vrata
notranje stopnišče v leseni izvedbi
notranja vrata s skritimi panti
višina stropov cca 2,6 m
Notranja obdelava
3-slojni hrastov parket v bivalnih in spalnih prostorih (možnost izbire)
keramika v kopalnicah, hodnikih, utilitiju in garaži (možnost izbire)
keramika na terasah
stene ometane in barvane v svetlih tonih
v kopalnicah vključeni: tuš, stena, armature in WC
OGREVANJE IN UDOBJE
toplotna črpalka zrak–voda (ločeno za vsako enoto)
talno gretje v vseh bivalnih prostorih
električni radiator v kopalnici
možnost dodatnega ogrevanja s kaminom
lokalna rekuperacija
predpriprava za klimatsko napravo
predpriprava za električno polnilnico
PARCELA IN ZUNANJA UREDITEV
Dvojček bo zgrajen na zemljišču velikosti 659,4 m².
Vsaka enota ima lastni vhod, zasebni vrt in teraso.
tlakovane dovozne in manipulativne površine
lesena ograja na terasi in balkonu
lesena in steklena ograja stopnišča
zelenice zatravljene in hortikulturno urejene
Parkiranje:
– 2 parkirni mesti na enoto
– omogočeno obračanje vozil na parceli
INFRASTRUKTURA IN PRIKLJUČKI
elektrika in telekomunikacije (ločeno za vsako enoto)
vodovod (ločeni priključki z vodomernim jaškom)
mala biološka čistilna naprava (ločeno za vsako enoto)
meteorne vode: zbiralnik deževnice in ponikovalnica
dostop urejen preko interne dovozne ceste z navezavo na Finžgarjevo ulico
LOKACIJA: VSE NA DOSEGU ROKE
Vrtec: 600 m
Osnovna šola: 700 m
Avtobusna postaja: 400 m
Železniška postaja: 1,5 km
Center Medvod: 1,5 km
Trgovina: 1 km
Rekreacijske površine: 300 m
KLJUČNE PREDNOSTI
mirno in urejeno naselje v bližini narave
sodobna in funkcionalna zasnova
možnost izbire materialov in prilagoditev notranjosti
kakovostna novogradnja
lastni vhod in zasebni vrt
bližina Medvod in hitra povezava z Ljubljano
Pričetek gradnje: marec 2026
Zaključek gradnje: sredina leta 2027
Cena: 645.000 € + 9,5 % DDV
Kupec se zaveže povrniti del stroškov prodaje v višini 1 %.
Lastnosti nepremičnine
Ogrevanje/hlajenje
- /
Zunanjost
- /
Priključki
- /
Udobje
- /


